Энергоэффективный дом заводского
производства за три месяца

Расчет стоимости

Дом заводского производства

  1. Качество за счет Prefab технологии

  2. Панорамное остекление

  3. Энергосбережение A++

  4. Второй свет 5,5 метра

Каркасно‑панельная технология заводской готовности на основе деревянного каркаса, с заполнением каменной ватой, внутренней обшивкой ГСП и интеграцией каналов для инженерии на производстве.

Кухня‑гостиная
Гостиная со вторым светом
Спальня на мансарде
Ванная
Детская
Кухня‑гостиная
Гостиная со вторым светом
Спальня на мансарде
Ванная
Детская
Финская сауна
Сканди 96

Продуманные
планировки

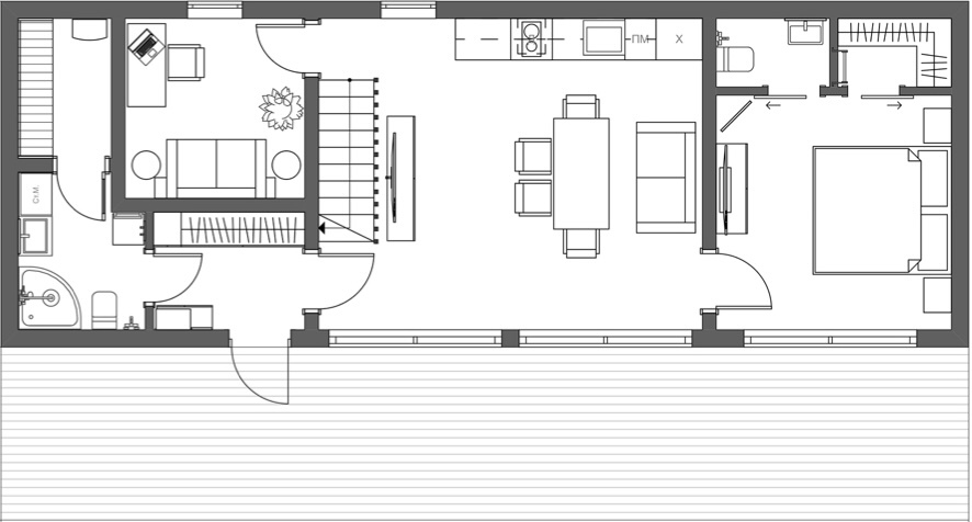
Общая площадь 126 м²
Полезная площадь 96 м²
Терраса 35 м²
Площадь застройки 14х7,5 м
Комнаты 4
Санузлы 2
Котельная 1
Кладовая 1
Гардеробная 1
Мастер спальня 1
Планировка 1 этаж
Планировка 2 этаж

В проекте этого дома наши дизайнеры продумали каждый сантиметр пространства: удобные планировки, максимальное использование полезной площади и комфорт для всей семьи.
В доме предусмотрены просторная кухня-гостиная, отдельная мастер-спальня, продуманная система хранения, а также современная котельная и кладовая. Каждый элемент создан для удобства и уюта ваших близких.

Фасад Скандинавский 96
Терраса и вход
Дом с участка
Сканди 96

Выбрать
комплектацию

Дом Скандинавский 96
Расчет стоимости*

6 480 000 ₽

  • Тёплый контур
  • Без дополнительных опций
Позвонить нам
  • Домокомплект: обвязка фундамента, обвязочная доска с гидроизоляцией, цокольные панели, стеновые панели, панели перекрытия и кровли заводского производства.
  • Окна: REHAU 80, PSK-порталы (2 шт, панорамные раздвижные)
  • Фасад: скандинавская доска крашенная на производстве, наличники, монтаж
  • Кровля: мягкая черепица Shinglas, снегозадержание, грибки, водосток GrandLine, монтаж
  • Терраса: террасная доска крашенная, монтаж
  • Подшив цоколя: скандинавская доска, монтаж цокольной доски
  • Ступеньки: террасная и скандинавская доска, монтаж ступеней

Цвет фасада можно подобрать под участок и окружение: более светлые тона подчёркивают скандинавский характер, тёмные — создают эффект «шале» и уютного лесного дома.

Скандинавская доска с поднятым ворсом красится на производстве в три слоя обеспечивая наиболее устойчивое воздействие окружающей среды и долговечное использование.

*Расчёт ориентировочный, без доставки и индивидуальных доработок. Актуальные цены уточняйте у менеджера.

Четыре
простых шага

  1. Оставьте заявку

    Заполните форму на сайте или позвоните менеджеру More House.

  2. Выберите стиль

    Определите цвет фасада и варианты интерьера по референсам и фото.

  3. Зафиксируйте стоимость

    Подписываем договор, стоимость дома фиксируется и разбивается на этапы.

  4. Получите ключи

    Через несколько месяцев заселяетесь в готовый энергоэффективный дом.

Технологии
строительства

Увидеть технологию вживую: приезжайте на наш завод и в готовый квартал

Теория — это хорошо. Но лучше один раз увидеть, как рождаются панели, как собирается дом, как выглядит тепловизионный отчёт. Приезжайте на наше производство и в КП «Новолеоново». Мы покажем всё, расскажем и ответим на вопросы.

Или позвоните: +7 499 647-63-67