Продолжая использовать сайт, вы соглашаетесь с обработкой персональных данных в соответствии с Политикой конфиденциальности
Принять

Идеальный дом для современного и компактного участка
Ваш первый дом, где все продуманно

Расчет стоимости

Дом заводского производства

  1. Качество за счет Prefab технологии

  2. Панорамное остекление

  3. Энергосбережение A++

  4. Второй свет 5,5 метра

Каркасно‑панельная технология заводской готовности на основе деревянного каркаса, с заполнением каменной ватой, внутренней обшивкой ГСП и интеграцией каналов для инженерии на производстве.

Кухня‑гостиная
Гостиная со вторым светом
Кухня 2
Кухня 3
Гостинная
Детская
Спалья
хранения
Спалья 2
Спалья 3
Ванная
Сауна
Финаская сауна
Спалья 3
Холл
Прихожая
Сканди 72

Продуманные
планировки

Общая площадь 100,5м²
Полезная площадь 72 м²
Терраса 25 м²
Площадь застройки 10х7,5 м
Комнаты 3
Санузлы 1
Котельная 1
Кладовая 1
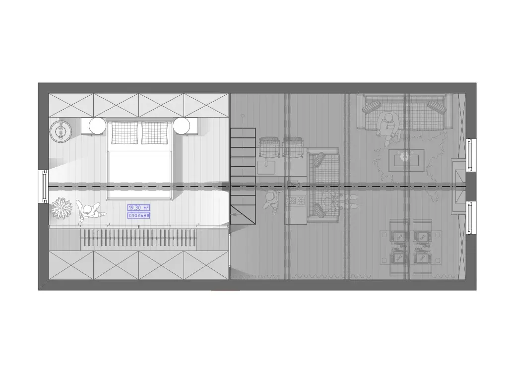
Планировка 1 этаж
Планировка 2 этаж

В проекте этого дома наши дизайнеры продумали каждый сантиметр пространства: удобные планировки, максимальное использование полезной площади и комфорт для всей семьи.
В доме предусмотрены просторная кухня-гостиная, отдельная мастер-спальня, продуманная система хранения, а также современная котельная и кладовая. Каждый элемент создан для удобства и уюта ваших близких.

Фасад Скандинавский 96
Терраса и вход
Дом с участка
Сканди 72

Выбрать
комплектацию

Дом Скандинавский 72
Расчет стоимости*

5 760 000 ₽

  • Тёплый контур
  • Без дополнительных опций
Позвонить нам
  • Домокомплект: обвязка фундамента, обвязочная доска с гидроизоляцией, цокольные панели, стеновые панели, панели перекрытия и кровли заводского производства.
  • Окна: REHAU 80, PSK-порталы (2 шт, панорамные раздвижные)
  • Фасад: скандинавская доска крашенная на производстве, наличники, монтаж
  • Кровля: мягкая черепица Shinglas, снегозадержание, грибки, водосток GrandLine, монтаж
  • Терраса: террасная доска крашенная, монтаж
  • Подшив цоколя: скандинавская доска, монтаж цокольной доски
  • Ступеньки: террасная и скандинавская доска, монтаж ступеней
Дизайн проекты

Цвет фасада можно подобрать под участок и окружение: более светлые тона подчёркивают скандинавский характер, тёмные — создают эффект «шале» и уютного лесного дома.

Скандинавская доска с поднятым ворсом красится на производстве в три слоя обеспечивая наиболее устойчивое воздействие окружающей среды и долговечное использование.

*Расчёт ориентировочный, без доставки и индивидуальных доработок. Актуальные цены уточняйте у менеджера.

Четыре
простых шага

  1. Оставьте заявку

    Заполните форму на сайте или позвоните менеджеру More House.

  2. Выберите стиль

    Определите цвет фасада и варианты интерьера по референсам и фото.

  3. Зафиксируйте стоимость

    Подписываем договор, стоимость дома фиксируется и разбивается на этапы.

  4. Получите ключи

    Через несколько месяцев заселяетесь в готовый энергоэффективный дом.

Технологии
строительства

Готовый энергоэффективный дом под ключ

от 5 760 000 руб.

Оставьте контакты — отправим подробный прайс-лист и комплектацию проекта
Сканди 72.